DisruptorDavies 4 years ago
DisruptorDavies Verified #community

The never ending story of Voreda House

The ongoing story of the politics of Voreda House act 3 now on stage.

Eden Council are again attempting to get plans passed by their own planning commitee to convert Voreda House in Penrith into a new headquarters for the council.

Last month plans for Voreda House were rejected by the council’s planning commitee.

There has been a lot of public views expressed on the plans both the original visual impact the building design would have had and the actual need at this time for a building to be redeveloped given the council along with all local councils and the county council are undergoing a governance review by government currently out for public consultation that could see Eden council vanish be 2023 with fresh elections taking place for the new council as early as May 2022.

The concerns raised include the spending of public money on the building billed now as a Net Zero "Passive house" office building.

There is no denying the new exterior plans are a vast visual improvement on the original proposal and looks a lot better than the green Lego block building proposed and objected to and subsequently refused planning permission.

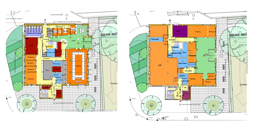
Other objections included concerns about the interior plans proposed that originally had the building as an open plan space that would have removed many of the internal walls and provide no additional fire escape routes to the building given the removal of walls that could have acted as fire break walls.

The new ground floor plans have been radically altered to include a lot more walls and enclosed spaces.

Curiously, the original plant room that was part of the original plans to house the heat exchange equipment to make deliver the buildings green credentials on heat exchange and production have vanished.

Along with this other concerns raised included the fact the plans had no provision for a large council meeting room to host the council public meeting needs and would required the council to use the current town hall space still or alternative venues.

Again, this has now been addressed in the new plans along with a large IT server room space and curiously 2 separate shower rooms one rather large in proportion to the overall space of the building.

Not sure why a council office building needs one shower let alone a second large shower room?

Overall, there is no denying that the new plans are much better visually than the original plans put forward.

However the non-planning issue of the building development, are is timing right and the spending of public money until the future of the council is known the right and proper thing in the best intrest of the spending of public money that the council has a responsibility for or given the massive political earthquake in the council political groups that has seen the Independent group split with a 5 member independent alliance group forming loyal to the views and position of the councils ruling coalition.

Given the group leader was quoted as saying "You dont vote against your own alliance" showing that they are minded to vote for everything the coalition puts forward instead of acting as unbiased councillors coming to every meeting and vote with an open mind and voting in best interests of the Eden community they serve and represent.

It is obvious given the political manoeuvring to gain the majority of seats on the planning commitee that the coalition will now get the voreda house plans passed regardless so it’s a done deal on planning front even if the development is not in the best interests of the public purse at this time.

From the position of planning not much to be able to object to. However on a logical and moral position there are grounds to call for the development to be paused until the future needs and structure of local government in Cumbria is known in matter of months.

Of course, any opposition to the development will be called political by those who favour the development going ahead come hell or high water those who see this Vanity project as a legacy to be left in Penrith for generations.

Let us not forget the other legacy of a past administration that left us the legacy of Penrith New Squares and the great success that has been to date.

The questions to ask on the new plans are:

What happened to the grand energy and heat system for Voreda House.

What happened to the living wall plans the one of the better parts of the plan.

Why do the council need a big shower room.

Why do they now need a big server room and yet previously had none.

A few of the list of questions that still need addressed alongside the actual green credentials of the whole plan and future plans for the town hall and Mansion House by the council and how that lines into the Net zero proposals.

The logical non-political route would be to not push thus through mindlessly just for political gain and vanity but to do the right thing and pause for review and consultation and understand the needs of the council after the local government reorganisation review is completed.

Otherwise, the council’s legacy will not be a building that works for Penrith and the council but a legacy of another white elephant for Penrith by Eden Council and one that will stand as a monument to the failure to deliver for the needs of the community over political gains and vanity of a few individuals on the council.


The full plans can be viewed on the Eden council planning site: View planning application

Council emptying the piggybank

Playing a dangerous game with public money.

DisruptorDavies
4 years ago

Councils public accounts don’t add up and are full omissions.

DisruptorDavies
2 years ago

My Letter To Tomorrow.

DisruptorDavies
2 years ago

The Future of Freeview Will Be Decided in Dubai at WRC23

DisruptorDavies
2 years ago

Never be a bystander that let’s evil rise in our nation.

DisruptorDavies
3 years ago